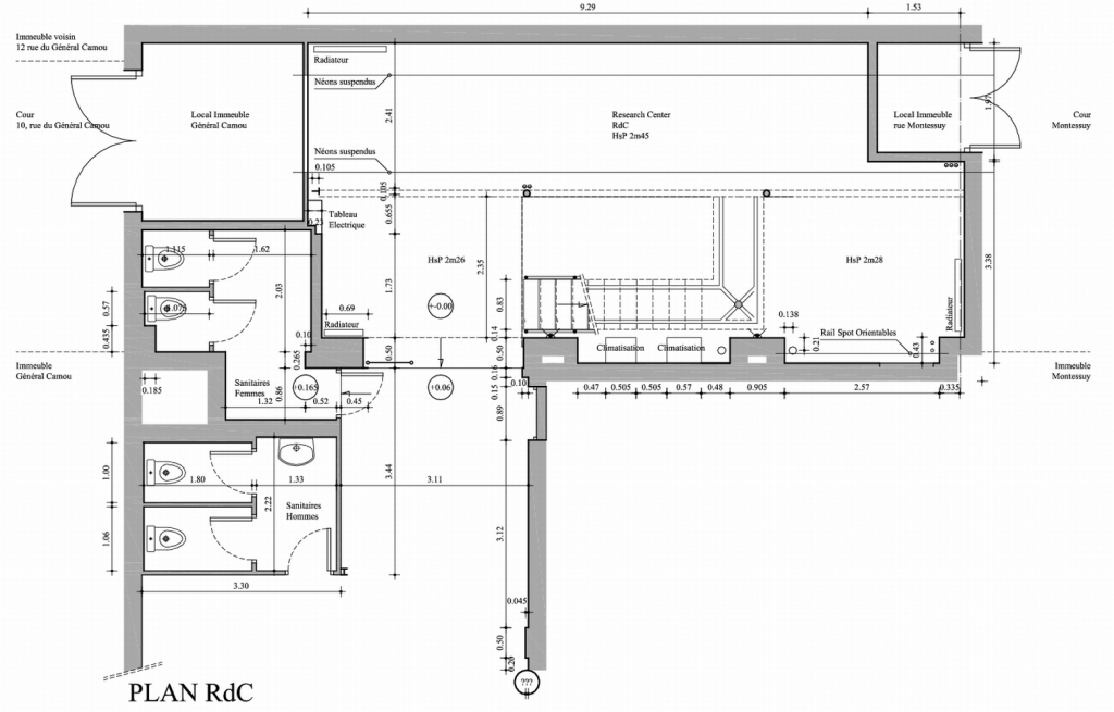
projet: Americain Library in Paris-VII° plan RdC photographer: Luca Ruspantini